Toggle navigation
Home
Immobili
Vendite
Affitti
Immobili commerciali
Capannoni
Cantieri
Chi siamo
Servizi
Contatti
Invia la tua richiesta
Previous
Next
500.000 €
Ad.ze MM Tolstoy, trilocale ristrutturato
3 locali in vendita • Milano
(Barona/ Giambellino/ Lorenteggio)
Via Lorenteggio
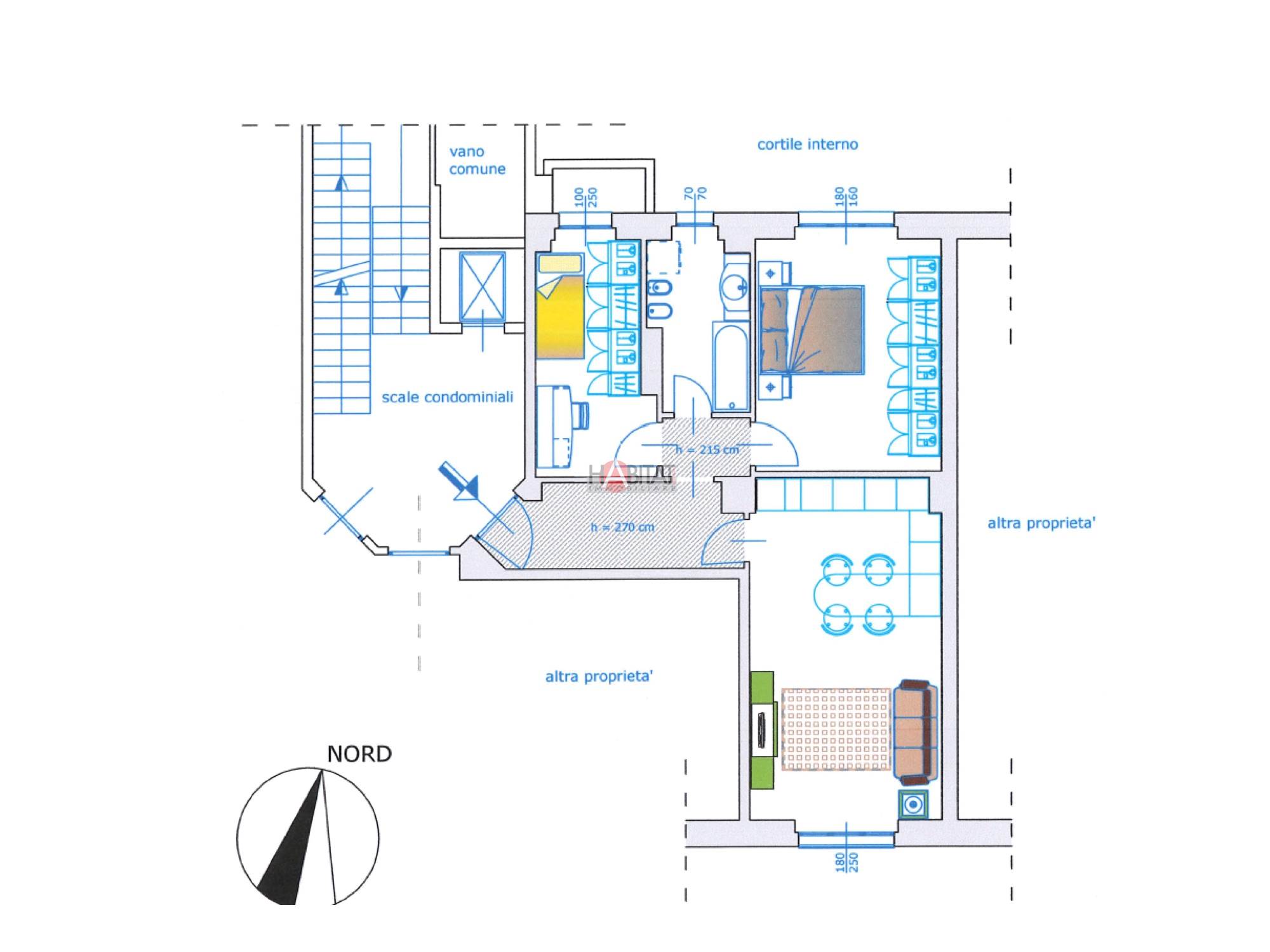
In stabile medio signorile con ascensore, portineria e giardino condominiale, proponiamo trilocale completamente ristrutturato composto da ingresso, soggiorno con cucina a vista, due camere da letto, bagno finestrato, balcone e cantina. Doppia esposizione, riscaldamento centralizzato. L'appartamento è stato recentemente ristrutturato ed è dotato di tapparelle elettriche, zanzariere e aria condizionata. Possibilità di subentrare al contratto di affitto di un box singolo nello stabile. Libero al rogito.
Classe energetica B 98,50 kwh/m2a
€ 500.000
HABITAT LORENTEGGIO 02.48. 71.25. 41.
Caratteristiche principali
Codice
lorel24
Città
Milano
(Barona/ Giambellino/ Lorenteggio)
Categoria
3 locali
Prezzo
500.000 €
Locali
3
Camere
2
Bagni
1
Mq
80
Balconi
1
Classe energetica
B
98,5 kWh/m²a
Stato Immobile
Ristrutturato
Grado
Medio
Lati Liberi
2
Giardino
Comune
Tipo Soggiorno
Soggiorno
Tipo Cucina
A Vista
Riscaldamento
Centralizzato
Tipo Riscaldam.
Caldaia
Tipo Impianto
Pavimento
Accessori:
Aria Condizionata, Ascensore, Cancello Elettrico
Foto • Planimetrie • Video
Foto
Planimetrie
Opzioni
Stampa scheda immobile
Invia scheda via mail
Richiedi informazioni
Nominativo *
Telefono *
Email *
Dettagli richiesta *
Autorizzo il trattamento dei miei dati personali in base al Regolamento UE n. 679/2016 -
Privacy Policy
Autorizzo al trattamento dei dati per finalità di marketing, attività promozionali, offerte commerciali ed indagini di mercato.
Invia
Condividi su
Ti consigliamo anche
In Vendita
P.le Siena - 3 locali
315.000 €
In Vendita
Ad.ze MM1 Primaticcio – ampio 3 locali
450.000 €
In Vendita
Ad.ze Piazza Melozzo da Forlì - 3 locali
298.000 €
Mantieni impostazioni di default X
Uso dei cookies
Questo sito fa uso di cookies. I nostri cookies (propri) e quelli dei nostri Partners (cookies di terzi) servono per poterti offrire un'esperienza unica con noi. Per questo motivo, insieme ai nostri partners, raccogliamo e processiamo informazioni non sensibili (come l'identificatore del tuo dispositivo o le pagine che visiti).
In qualsiasi momento potrai eliminare, modificare o verificare le informazioni che condividi in
Cookie preference
o nella nostra
Cookie Policy
e
Privacy Policy
.
Necessari
Funzionali
Profilazione
Analitici
Accetta tutti
Rifiuta tutti
Accetta selezionati
Cookie preference